3 Bedroom Detached For Sale   |   Merlin Gardens, Bedford, MK41 7HH   |    £495,000

Virtual Tour

Key Features

  • EXTENDED DETACHED
  • CORNER PLOT BUNGALOW
  • NO UPWARD CHAIN
  • THREE BEDROOMS
  • DRIVEWAY
  • REAR GARDEN
  • GREAT SCHOOL CATCHMENT AREA
  • FLEXIBLE LIVING OVER TWO FLOORS
  • ADDITIONAL STORAGE AREA
  • CLOAKROOM / EN-SUITE & WET ROOM

Summary

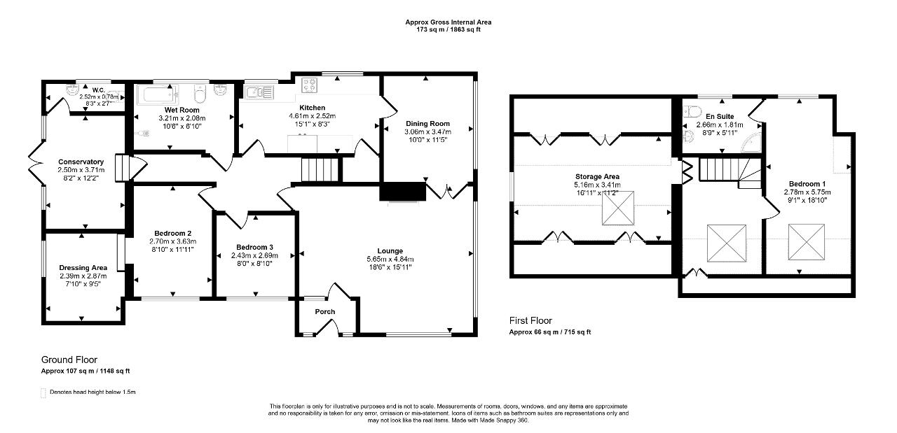
This versatile corner-plot chalet bungalow offers flexible living across two well-planned floors. GROUND FLOOR: Entrance porch, a lounge, a dining room, a fitted kitchen, two bedrooms, a dressing area, a small conservatory, a wet room and an additional cloakroom. UPSTAIRS: Main bedroom and an en-suite with a large additional storage room. The enclosed garden provides a private outdoor retreat. A driveway adds convenience for parking. No upward chain means a smoother move, and the property sits in a great school catchment area, ideal for families seeking stability and opportunity.

Ground Floor

Entrance Via

Entrance Hall

Lounge

18' 6'' x 15' 10'' (5.65m x 4.84m)

Kitchen

15' 1'' x 8' 3'' (4.61m x 2.52m)

Dining Room

11' 4'' x 10' 0'' (3.47m x 3.06m)

Inner Hallway

Wet Room

10' 6'' x 6' 9'' (3.21m x 2.08m)

Bedroom Two

11' 10'' x 8' 10'' (3.63m x 2.7m)

Dressing Area

9' 4'' x 7' 10'' (2.87m x 2.39m)

Bedroom Three

8' 9'' x 7' 11'' (2.69m x 2.43m)

Conservatory

12' 2'' x 8' 2'' (3.71m x 2.5m)

Cloakroom

First Floor

Landing

Bedroom One

18' 10'' x 9' 1'' (5.75m x 2.78m)

En-Suite

Storage Area

16' 11'' x 11' 2'' (5.16m x 3.41m)

Exterior

Rear Garden

Driveway

Location

Merlin Gardens is situated within the Brickhill area north of Bedford town. It has several shops close by as well as schools within walking distance.

Additional Information

For further information on this property please call 01234 271599 or e-mail info@homeestateagents.net

Contact Us

31 Tavistock Street, Bedford, Bedfordshire, MK40 2RB

01234 271599

info@homeestateagents.net


Key Features

  • EXTENDED DETACHED
  • NO UPWARD CHAIN
  • DRIVEWAY
  • GREAT SCHOOL CATCHMENT AREA
  • ADDITIONAL STORAGE AREA
  • CORNER PLOT BUNGALOW
  • THREE BEDROOMS
  • REAR GARDEN
  • FLEXIBLE LIVING OVER TWO FLOORS
  • CLOAKROOM / EN-SUITE & WET ROOM

Share this property

Property Search

Property Search

Share this property