2 Bedroom Link Detached For Sale   |   Chapel Close, Bedford, MK41 0DR   |    £300,000 Sold STC

Virtual Tour

Key Features

  • CHAIN FREE
  • TWO BEDROOMS
  • PERIOD FEATURES
  • ENCLOSED REAR GARDEN
  • LOUNE & DINING ROOM
  • FITTED KITCHEN
  • FITTED BATHROOM
  • CHARACTER & CHARM
  • OUTSIDE STORAGE ROOM
  • LINK-DETACHED

Summary

Fall in love with this charming, two-bedroom link-detached home! Overflowing with character and offered with no upward chain, this delightful property presents a fantastic opportunity to settle in quickly. Picture yourself relaxing in the spacious lounge, enjoying family meals in the dining room, and creating culinary delights in the well-appointed kitchen. Step outside to discover an enclosed rear garden perfect for relaxing and entertaining. This home also boasts a bathroom and a small additional outbuilding, offering versatility and extra storage. Don't miss the chance to make this your forever home!

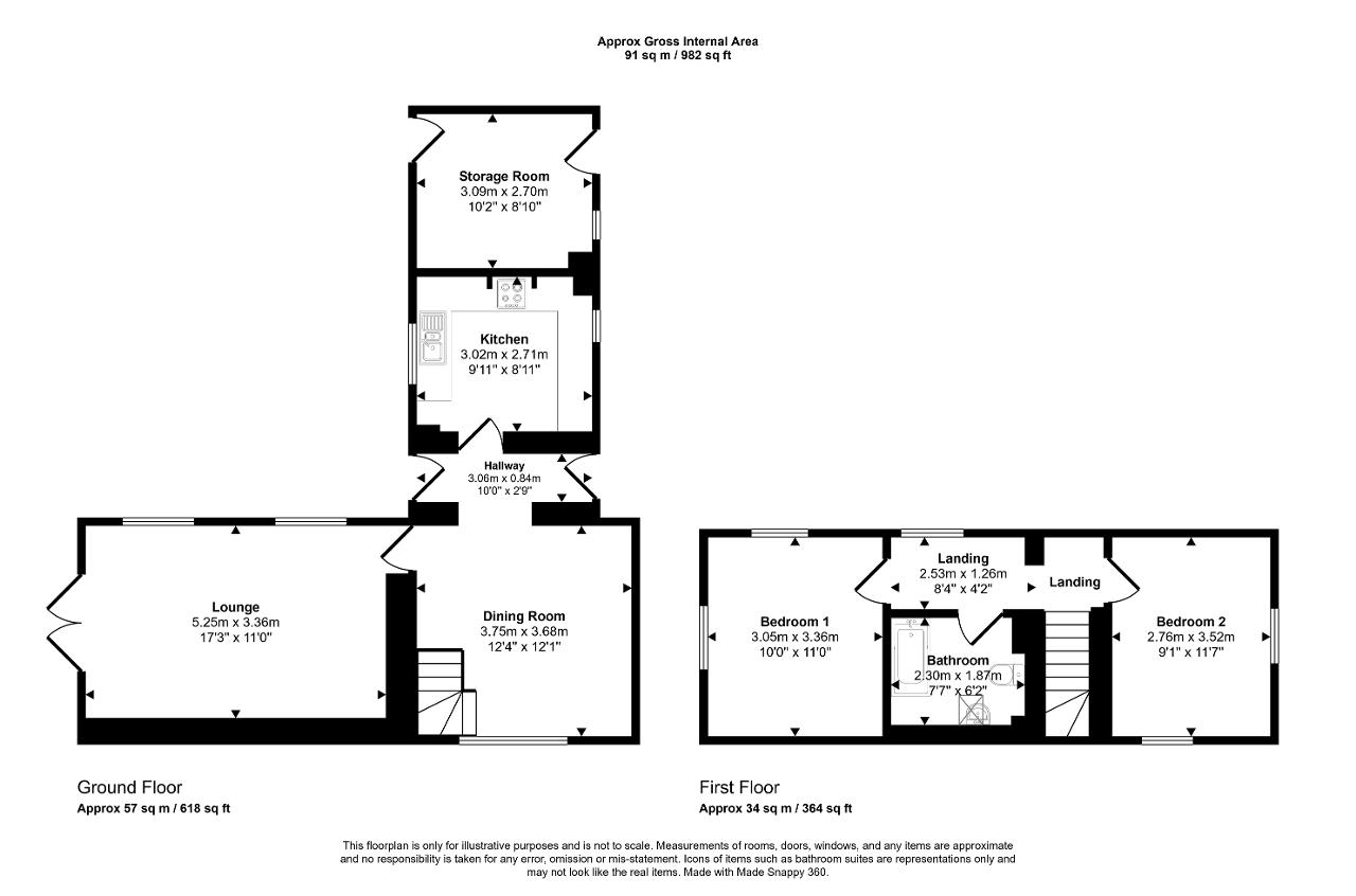
Ground Floor

Entrance Via

Entrance Hall

Lounge

17' 2'' x 11' 0'' (5.25m x 3.36m)

Kitchen

9' 10'' x 8' 10'' (3.02m x 2.71m)

Dining Room

12' 3'' x 12' 0'' (3.75m x 3.68m)

First Floor

Landing

Bedroom One

11' 0'' x 10' 0'' (3.36m x 3.05m)

Bedroom Two

11' 6'' x 9' 0'' (3.52m x 2.76m)

Bathroom

Exterior

Rear Garden

Storage Area

10' 1'' x 8' 10'' (3.09m x 2.7m) REQUIRES WORK / POTENTIAL TO BE A STUDY/OFFICE AREA

Location

Located within the "Goldington" area of Bedford, Great schools, close to many shops and retail outlets, road and bus links and the town centre

Energy Efficiency

EPC Graph

Additional Information

For further information on this property please call 01234 271599 or e-mail info@homeestateagents.net

Contact Us

31 Tavistock Street, Bedford, Bedfordshire, MK40 2RB

01234 271599

info@homeestateagents.net


Key Features

  • CHAIN FREE
  • PERIOD FEATURES
  • LOUNE & DINING ROOM
  • FITTED BATHROOM
  • OUTSIDE STORAGE ROOM
  • TWO BEDROOMS
  • ENCLOSED REAR GARDEN
  • FITTED KITCHEN
  • CHARACTER & CHARM
  • LINK-DETACHED

Share this property

Property Search

Property Search

Share this property