4 Bedroom Terraced For Sale   |   Foster Hill Road, Bedford, MK41 7TB   |   Guide Price £400,000 Sold STC

Virtual Tour

Summary

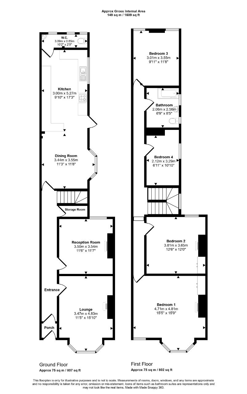
This bay-fronted property is situated within walking distance to Bedford's town centre and railway station, whilst also opposite Bedford Park and Robinson Pool. On the ground floor, we have a lounge, a further reception room, a large kitchen with a dining area and a cloakroom. Upstairs we have four bedrooms and a bathroom. Outside, we have a low-maintenance courtyard-style garden.

Ground Floor

Entrance Via

Entrance Hall

Lounge

15' 10'' x 11' 4'' (4.83m x 3.47m)

Reception Room

11' 7'' x 11' 5'' (3.54m x 3.5m)

Small Storage Area

Dining Room

11' 7'' x 11' 3'' (3.55m x 3.44m)

Kitchen

17' 3'' x 9' 10'' (5.27m x 3m)

Cloakroom

First Floor

Landing

Bedroom One

15' 9'' x 15' 5'' (4.81m x 4.71m)

Bedroom Two

12' 5'' x 11' 11'' (3.81m x 3.65m)

Bedroom Three

11' 7'' x 9' 10'' (3.55m x 3.01m)

Bedroom Four

10' 9'' x 6' 11'' (3.29m x 2.12m)

Bathroom

8' 4'' x 6' 9'' (2.56m x 2.06m)

Exterior

Court-Yard Style Rear Garden

Location

Foster Hill Rd offers a friendly community in a well-linked, central location. Bedford train station is just minutes away, providing fast links to London. The property is also located opposite Bedford Park and within easy reach of Bedford Embankment, offering quiet, scenic walks right from the doorstep.

Bedford itself provides many local shops and is known for its independent restaurants, pubs, and cafes, with many local spots within walking distance. D'Parys Hotel offers great food and a warm atmosphere, while nearby pubs offer an excellent place for a drink.

Energy Efficiency

EPC Graph

Additional Information

For further information on this property please call 01234 271599 or e-mail info@homeestateagents.net

Contact Us

31 Tavistock Street, Bedford, Bedfordshire, MK40 2RB

01234 271599

info@homeestateagents.net

Share this property

Property Search

Property Search

Share this property